新築一戸建て京都市西京区山田車塚町3期2号地
物件概要
- 所在地
- 京都市西京区山田車塚町3期2号地
- 価格
- 5,198 万円
- 交通
-
阪急嵐山線 上桂駅 まで 徒歩17分
阪急京都本線 桂駅 まで 徒歩19分
- 土地面積
- 118.76㎡ (35.92坪)
- 建物面積
- 92.33㎡ (27.92坪)
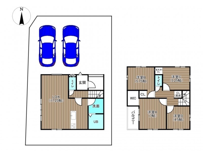
- 間取り
- 4LDK
- 築年数
- 2026年 (令和8) 1月 完成予定
- 建ぺい率
- 50%
- 容積率
- 80%
- 土地権利
- 所有権
- 構造および階数
- 木造 地上2階建
- 小学校区
- 松陽 (240m)
- 中学校区
- 樫原 (1000m)
- 私道負担
- あり (36.63㎡)
- 地目
- 宅地
- 現況
- 建築中
- 引渡時期
- 予定 2026年1月
- 駐車場
- 上水道
- 公共
- 下水道
- 公共
- ガス
- 都市ガス
- 都市計画
- 市街化区域
- 用途地域
- 1種低層
- 設備・条件
- 備考
- 取引態様
- 仲介
周辺地図
ストリートビュー&周辺地図
その他周辺物件
この物件は313人の方が興味を持っています。
